Pre - Engineered Buildings (PEB) Frames

MPIL Pre-engineered buildings are custom designed to meet your exact requirements. The basic defining parameters are :

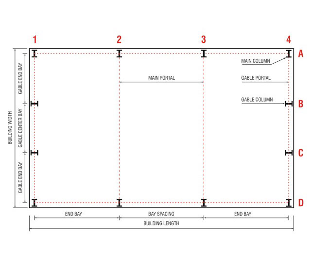
Building Width :

No matter what primary framing system is used, the building width is defined as the distance from outside of eave strut of one sidewall to outside of eave strut of the opposite sidewall. Building width does not include the width of Lean- To buildings or roof extensions.

Building Length :

The longitudinal length of the building measured from out to out of end wall steel lines.

Clear Height :

This is the distance between the Finished Floor Level to the bottom of knee joint.

Building Height :

Building height is the eave height which usually is the distance from the bottom of the main frame column base plate to the top outer point of the eave strut. When columns are recessed or elevated from finished foor, eave height is the distance from finished foor level to top of eave strut.

Bay Spacing :

The distance from outside of the outer flange of endwall columns to center line fof the first interior frame column.

Roof Slope (x/10) :

This is the angle of the roof with respect to the horizontal. The most common roof slopes are 0.5/10 and 1/10. Any practical roof slope is possible.

MPIL PEB Advantages :

  • Attractive colors & Flexible designs

  • Suitable for all weather conditions

  • Can withstand high wind speeds

  • Requires Low Maintenance

  • High Strength to Weight Ratio

  • Excellent space coverage

  • Environment Friendly

  • Leak proof Roofs